虚拟视频 按揭计算 学区概况 附近在售房源 房源地图 预约看房 周边交易情况

房屋详细信息
MLS编号:
1031644
挂牌日:
2026-04-13 (上市5天)
土地性质:
建于:
1954年
挂牌价:
102.50万
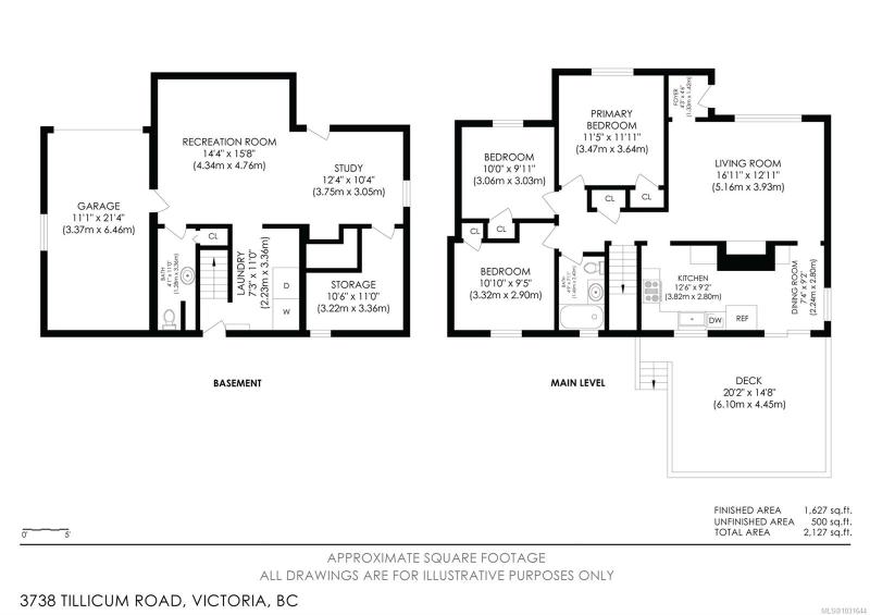
户型:
3卧2卫1厨 6车位
室内面积:
1627呎
占地:
6820呎
地址:
3738 Tillicum Rd, Saanich West,Tillicum区 查看地图
评估值:
83.90万(2026年)
地税:
$4172.9 (2025年)
卖方介绍:
这栋位于萨尼奇(Saanich)的房屋坐落于宽敞的地块上,经过精心翻新,拥有三间卧室和两间浴室,地理位置优越,交通便利,可轻松前往各级学校、当地商店、公园、交通枢纽以及众多户外探险场所。房屋经过精心翻新,拎包即可入住。宽敞明亮的主层设有阳光充足的客厅、现代化的厨房和餐厅,餐厅通往一个超大的有顶露台,露台上预留了热水浴缸接口,可俯瞰郁郁葱葱的花园。楼上设有一间设施齐全的四件套浴室和三间舒适的卧室,其中包括一间宽敞的主卧套房。地下室拥有宽敞的休闲娱乐空间、带储物空间的大型洗衣房、半卫以及一个灵活的书房,非常适合远程办公。房屋外墙经过专业粉刷,光彩夺目。此外,房屋还配有车库、可停放休闲车辆的宽敞车道、安全的围栏、抬高的花园苗圃、温室、户外储物棚和灌溉系统。千万不要错过这个绝佳机会!

【以上为机器自动翻译,可能不通畅。请联系我们,免费获得这个房产的全中文介绍!】 原版英文介绍按这里
房屋结构:
朝向:
东南
历史交易价格:
97万 (2022-08-18)
Listing Courtesy of RE/MAX Camosun

需要更多信息吗? 比如它的详细户型图?看看现业主的房产证?土地的允许用途?有什么限制?这个房子的边界在哪里?有标准的测量图吗?请立刻微信联络我们,我们会发给您更多的信息。
若这个房子有什么动态(如价格下调),我们会立刻用电子邮件及时通知您:

预约看房

百闻,不如亲眼一见。

维多利亚著名华人经纪:Bill Liu-23年维多利亚经验,极熟知市场,维房网客户100%一致推荐!点这里看他的详细介绍。

Bill Liu

过去5年大维成交最多的华人经纪之一。 这么多客户的选择 - 问他,没错!

很多房子,实地看到和照片上是完全不同的概念。

听听Bill对这个房子怎么评论?有问必答。

买房卖房 投资置业,应该交给:

一个有市场眼光的人;
一个懂你需求的人;
一个专业的人;
一个值得你信赖的人。

若需要帮您安排看房, 请立刻添加维房网微信:VicFangWang

电子邮件:bill.liu.victoria@gmail.com

我们一定会尽力解答。

QR code
立刻扫描微信二维码,添加维房网
周边近期成交统计(19单)
【周边1公里左右】【过去半年】共成交【独栋】【19单】。

要查询所有具体成交的房产地址、价格或时间等详情,请微信联络我们:VicFangWang。

附近几单的最近成交细节如下:
  • 3卧2卫1601呎独栋,1932年建, 88万挂牌,于03-24日以89万成交。
  • 3卧2卫1380呎独栋,1947年建, 94万挂牌,于03-23日以95万成交。
  • 3卧2卫2033呎独栋,1959年建, 98万挂牌,于03-14日以99万成交。
周边公立学校

学校排名
小学Mckenzie53/49
初中Colquitz--
* 排名基于Fraser学院2019学校报告。查看
** 点击学校名字可以查看该校所属房源。
按揭计算器
房屋价格:
首付:
贷款利率(%):
还款年限:
月供: