按揭计算 学区概况 附近在售房源 房源地图 预约看房 周边交易情况

房屋详细信息
MLS编号:
1029380
挂牌日:
2026-03-31 (上市3天)
土地性质:
建于:
1950年
挂牌价:
129.90万
户型:
4卧3卫2厨 3车位
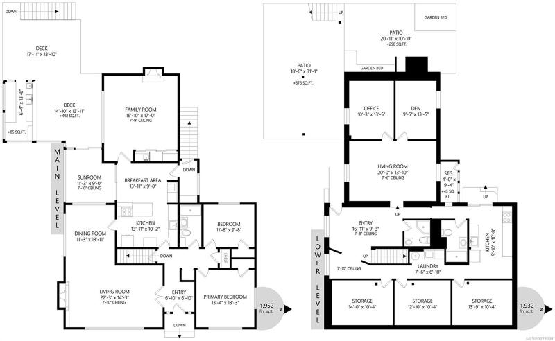
室内面积:
3884呎
占地:
12612呎
地址:
3510 Richmond Rd, Saanich East,Mt Tolmie区 查看地图
评估值:
118.10万(2026年)
地税:
$5753.13 (2025年)
卖方介绍:
欢迎来到这处位于黄金地段的绝佳房产!房屋坐落于宽敞的地块上,拥有阳光充足的后院,是享受傍晚阳光和欣赏美景的理想场所。宽敞的露台是招待亲朋好友的完美之选。室内布局宽敞实用,拥有巨大的客厅、独立的餐厅和温馨的早餐角。宽敞的家庭活动室提供了额外的休闲空间,而翻新的浴室则增添了现代舒适感。独立的套房可供大家庭成员居住或出租,带来额外的收入。地理位置优越,步行即可到达所有生活设施,且位于主要公交线路沿线,距离维多利亚大学 (UVic) 和卡莫森学院 (Camosun College) 仅几分钟路程,距离圣迈克尔斯大学学校 (St. Michaels University School) 也只有半个街区。无论您是寻求宽敞空间的自住业主、寻求出租潜力的投资者,还是探索未来开发机会的建筑商,这处房产都能满足您的所有需求。

【以上为机器自动翻译,可能不通畅。请联系我们,免费获得这个房产的全中文介绍!】 原版英文介绍按这里
公共服务:
朝向:
周边环境:
历史交易价格:
57万 (2015-10-13)
Listing Courtesy of Sutton Group West Coast Realty

需要更多信息吗? 比如它的详细户型图?看看现业主的房产证?土地的允许用途?有什么限制?这个房子的边界在哪里?有标准的测量图吗?请立刻微信联络我们,我们会发给您更多的信息。
若这个房子有什么动态(如价格下调),我们会立刻用电子邮件及时通知您:

预约看房

百闻,不如亲眼一见。

维多利亚著名华人经纪:Bill Liu-23年维多利亚经验,极熟知市场,维房网客户100%一致推荐!点这里看他的详细介绍。

Bill Liu

过去5年大维成交最多的华人经纪之一。 这么多客户的选择 - 问他,没错!

很多房子,实地看到和照片上是完全不同的概念。

听听Bill对这个房子怎么评论?有问必答。

买房卖房 投资置业,应该交给:

一个有市场眼光的人;
一个懂你需求的人;
一个专业的人;
一个值得你信赖的人。

若需要帮您安排看房, 请立刻添加维房网微信:VicFangWang

电子邮件:bill.liu.victoria@gmail.com

我们一定会尽力解答。

QR code
立刻扫描微信二维码,添加维房网
周边近期成交统计(14单)
【周边1公里左右】【过去半年】共成交【独栋】【14单】。

要查询所有具体成交的房产地址、价格或时间等详情,请微信联络我们:VicFangWang。

附近几单的最近成交细节如下:
  • 5卧3卫3050呎独栋,1963年建, 150万挂牌,于03-16日以150万成交。
  • 5卧4卫3202呎独栋,1968年建, 190万挂牌,于03-12日以190万成交。
  • 2卧1卫1218呎独栋,1950年建, 95万挂牌,于03-11日以101万成交。
周边公立学校

学校排名
小学Doncaster13/49
初中Cedar Hill--
高中Reynolds11/16
* 排名基于Fraser学院2019学校报告。查看
** 点击学校名字可以查看该校所属房源。
按揭计算器
房屋价格:
首付:
贷款利率(%):
还款年限:
月供: