虚拟视频 按揭计算 附近在售房源 房源地图 预约看房 周边交易情况

房屋详细信息
MLS编号:
1028252
挂牌日:
2026-03-10 (上市5天)
土地性质:
建于:
2027年
挂牌价:
99.80万
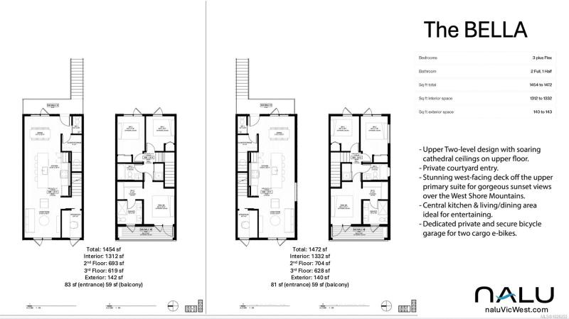
户型:
3卧3卫1厨
室内面积:
1312呎
占地:
1455呎
地址:
318 Bella St, Victoria West,Victoria West区 查看地图
评估值:
0.00万(2026年)
地税:
$1 (2026年)
卖方介绍:
欢迎来到位于维多利亚西区 (VicWest) 的 Nalu 社区。“贝拉”是一栋家庭式叠拼别墅,拥有 3 间卧室、1 个多功能空间和 2.5 间浴室,完美融合了令人惊艳的西海岸建筑风格和斯堪的纳维亚设计。主层采用功能齐全的开放式布局,挑高的天花板和宽大的窗户让室内充满自然光线。所有三间卧室均位于顶层,拱形天花板营造出宽敞明亮的空间感。主卧套房设有私人阳台,是欣赏日落美景的绝佳地点。别墅坐落于维多利亚西区的中心地带,毗邻市内最佳步道。步行即可到达 Market Garden、Westside Village 和 Selkirk Trestle,并可轻松前往 Galloping Goose 和 Gorge 水道进行皮划艇或游泳等水上活动。骑自行车 5 分钟即可到达维多利亚市中心,别墅还配备一个私密安全的电动自行车车库,设有专用插座和储物空间。

【以上为机器自动翻译,可能不通畅。请联系我们,免费获得这个房产的全中文介绍!】 原版英文介绍按这里
公用设施:
朝向:
西
年龄限制:
可出租?:
无限制
物业费:
$363/月
Listing Courtesy of Rennie & Associates Realty Ltd.

需要更多信息吗? 比如它的详细户型图?看看现业主的房产证?大楼的修缮储备金有多少?过去三年的财务报告?业主大会的讨论议题和纪要?未来几年有什么计划中的大修?请立刻微信联络我们,我们会发给您更多的信息。
若这个房子有什么动态(如价格下调),我们会立刻用电子邮件及时通知您:

预约看房

百闻,不如亲眼一见。

维多利亚著名华人经纪:Bill Liu-23年维多利亚经验,极熟知市场,维房网客户100%一致推荐!点这里看他的详细介绍。

Bill Liu

过去5年大维成交最多的华人经纪之一。 这么多客户的选择 - 问他,没错!

很多房子,实地看到和照片上是完全不同的概念。

听听Bill对这个房子怎么评论?有问必答。

买房卖房 投资置业,应该交给:

一个有市场眼光的人;
一个懂你需求的人;
一个专业的人;
一个值得你信赖的人。

若需要帮您安排看房, 请立刻添加维房网微信:VicFangWang

电子邮件:bill.liu.victoria@gmail.com

我们一定会尽力解答。

QR code
立刻扫描微信二维码,添加维房网
周边近期成交统计(7单)
【周边1公里左右】【过去半年】共成交【联排】【7单】。

要查询所有具体成交的房产地址、价格或时间等详情,请微信联络我们:VicFangWang。

附近几单的最近成交细节如下:
  • 2卧2卫1081呎联排,1976年建, 70万挂牌,于02-14日以69万成交。
  • 1卧1卫531呎联排,2021年建, 45万挂牌,于01-20日以45万成交。
  • 4卧4卫3058呎联排,1996年建, 150万挂牌,于01-10日以148万成交。
按揭计算器
房屋价格:
首付:
贷款利率(%):
还款年限:
月供: