虚拟视频 按揭计算 学区概况 附近在售房源 房源地图 预约看房 周边交易情况

房屋详细信息
MLS编号:
1021276
挂牌日:
2025-11-27 (上市142天)
土地性质:
建于:
2007年
挂牌价:
78.99万
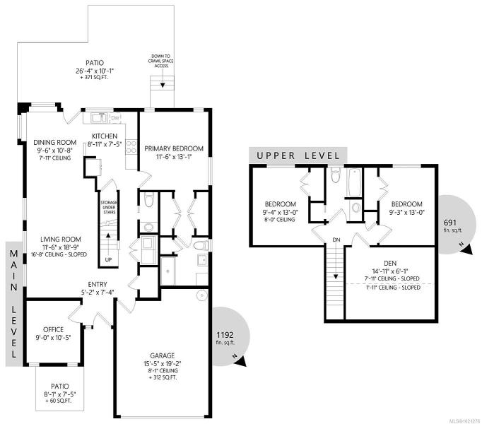
户型:
3卧3卫1厨 3车位
室内面积:
1883呎
占地:
3920呎
地址:
1914 Maple Ave, Sooke,Sooke Vill Core区 查看地图
评估值:
75.80万(2025年)
地税:
$4352.1 (2025年)
卖方介绍:
维护良好的定制住宅,建于2007年,由建筑商自住。步行数分钟即可到达海边,步行5分钟即可到达苏克镇中心,靠近学校、公交线路和所有生活设施!房屋设有3间以上的卧室和3间浴室,主卧位于一楼(布局类似平房),楼上设有2间卧室、4件套浴室和一个小型书房——非常适合青少年、客人居住,或者如果您只是需要更多空间。主层铺设硬木地板,拥有拱形天花板,舒适的书房可用作办公室、媒体室,或者如果加装护墙板,也可改造成第四间卧室,主层还设有一间两件套浴室。开放式客厅与铺设精美瓷砖的餐厅相连,并可通往带花园、储物区和工具棚的全封闭式后院。明亮宽敞的厨房位于房屋中心位置,配备超大储藏室,非常适合喜欢招待客人的人士,橱柜采用缓闭式设计。宽敞的主卧设有男女主人各自的衣帽间、舒适的三件套卫浴以及宽敞易用的淋浴间。巨大的带暖气地下室拥有海量储物空间。单车位车库带工作间。

【以上为机器自动翻译,可能不通畅。请联系我们,免费获得这个房产的全中文介绍!】 原版英文介绍按这里
公共服务:
朝向:
东南
历史交易价格:
36万 (2016-05-23)
Listing Courtesy of Maxxam Realty Ltd.

需要更多信息吗? 比如它的详细户型图?看看现业主的房产证?土地的允许用途?有什么限制?这个房子的边界在哪里?有标准的测量图吗?请立刻微信联络我们,我们会发给您更多的信息。
若这个房子有什么动态(如价格下调),我们会立刻用电子邮件及时通知您:

预约看房

百闻,不如亲眼一见。

维多利亚著名华人经纪:Bill Liu-23年维多利亚经验,极熟知市场,维房网客户100%一致推荐!点这里看他的详细介绍。

Bill Liu

过去5年大维成交最多的华人经纪之一。 这么多客户的选择 - 问他,没错!

很多房子,实地看到和照片上是完全不同的概念。

听听Bill对这个房子怎么评论?有问必答。

买房卖房 投资置业,应该交给:

一个有市场眼光的人;
一个懂你需求的人;
一个专业的人;
一个值得你信赖的人。

若需要帮您安排看房, 请立刻添加维房网微信:VicFangWang

电子邮件:bill.liu.victoria@gmail.com

我们一定会尽力解答。

QR code
立刻扫描微信二维码,添加维房网
周边近期成交统计(13单)
【周边1公里左右】【过去半年】共成交【独栋】【13单】。

要查询所有具体成交的房产地址、价格或时间等详情,请微信联络我们:VicFangWang。

附近几单的最近成交细节如下:
  • 3卧3卫1347呎独栋,2011年建, 58万挂牌,于02-09日以57万成交。
  • 4卧5卫3014呎独栋,2008年建, 125万挂牌,于02-14日以123万成交。
  • 5卧2卫2090呎独栋,1940年建, 73万挂牌,于12-11日以72万成交。
周边公立学校

学校排名
小学John Muir--
初中Journey--
高中Edward Milne15/16
* 排名基于Fraser学院2019学校报告。查看
** 点击学校名字可以查看该校所属房源。
按揭计算器
房屋价格:
首付:
贷款利率(%):
还款年限:
月供: