虚拟视频 按揭计算 附近在售房源 房源地图 预约看房 周边交易情况

房屋详细信息
MLS编号:
1028554
挂牌日:
2026-03-11 (上市7天)
土地性质:
建于:
1940年
挂牌价:
99.99万
户型:
2卧2卫1厨 3车位
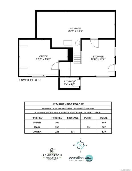
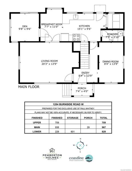
室内面积:
1875呎
占地:
21780呎
地址:
1254 Burnside Rd, View Royal,Hospital区 查看地图
评估值:
116.40万(2026年)
地税:
$4792.59 (2025年)
卖方介绍:
周六开放参观,时间:中午12点至下午2点。这栋2500平方英尺(约232平方米)的特色住宅,拥有两间卧室,坐落于半英亩(约2023平方米)的土地上。房屋散发着温馨的历史气息,宽敞的房间、壁炉和木地板更添几分韵味。房屋四周环绕着郁郁葱葱的成熟花园,营造出一片私密宁静的绿洲,尽享自然之美。宽敞的土地为户外活动和未来的开发提供了充足的空间。您可以尽情发挥想象,无论是扩建现有房屋还是建造新房,这里都蕴藏着无限可能。这处房产拥有独特的成长和未来发展潜力。屋内宽敞的起居空间采光极佳,是放松身心和招待宾客的理想场所。从主要房间可欣赏到花园美景,营造出宁静祥和的氛围。该房产位于理想的地段,完美融合了两种优势:既拥有宁静私密的居住环境,又可通过毗邻的步道轻松前往诺坎山公园,亲近自然。不要错过拥有这栋经典住宅的绝佳机会,它拥有无限的未来发展潜力。立即探索它的无限可能!

【以上为机器自动翻译,可能不通畅。请联系我们,免费获得这个房产的全中文介绍!】 原版英文介绍按这里
供热:
房屋结构:
朝向:
Listing Courtesy of Pemberton Holmes Ltd.

需要更多信息吗? 比如它的详细户型图?看看现业主的房产证?土地的允许用途?有什么限制?这个房子的边界在哪里?有标准的测量图吗?请立刻微信联络我们,我们会发给您更多的信息。
若这个房子有什么动态(如价格下调),我们会立刻用电子邮件及时通知您:

预约看房

百闻,不如亲眼一见。

维多利亚著名华人经纪:Bill Liu-曾经的建商背景,看房视觉独到,维房网客户100%一致推荐!点这里看他的详细介绍。

Bill Liu

过去5年大维成交最多的华人经纪之一。 这么多客户的选择 - 问他,没错!

很多房子,实地看到和照片上是完全不同的概念。

听听Bill对这个房子怎么评论?有问必答。

买房卖房 投资置业,应该交给:

一个有市场眼光的人;
一个懂你需求的人;
一个专业的人;
一个值得你信赖的人。

若需要帮您安排看房, 请立刻添加维房网微信:VicFangWang

电子邮件:bill.liu.victoria@gmail.com

我们一定会尽力解答。

QR code
立刻扫描微信二维码,添加维房网
周边近期成交统计(13单)
【周边1公里左右】【过去半年】共成交【独栋】【13单】。

要查询所有具体成交的房产地址、价格或时间等详情,请微信联络我们:VicFangWang。

附近几单的最近成交细节如下:
  • 6卧4卫3238呎独栋,2010年建, 190万挂牌,于02-12日以175万成交。
  • 3卧2卫1460呎独栋,1958年建, 100万挂牌,于01-16日以98万成交。
  • 4卧3卫2412呎独栋,1972年建, 110万挂牌,于12-27日以105万成交。
按揭计算器
房屋价格:
首付:
贷款利率(%):
还款年限:
月供: